您现在所在的位置:>首页 > 生活 > 正文
农村四合院别墅设计图(宽15米,进深23米的四合院,怎么弄最合理)
发布时间:2022-09-25 16:14   浏览量:20

农村宅基地15x23米,做套一进四合院是可以的,房屋围绕院落布局,白墙灰瓦,极具格调。可以参考下下面这套中式合院户型,尺寸相近,布局紧凑,美观实用。


合院信息:

别墅用地尺寸:16x25米

房屋总面积:450平方米

房屋层数:1+2层

房屋结构:框架结构

主体毛坯造价:60-70万

室内:6室4厅


外观效果图:

鸟瞰图

鸟瞰图

鸟瞰图

侧面

侧面

南侧

内院

内院

内院

房屋前低后高,层次丰富,阳台与露台相结合,院内布置水景凉亭,绿植点缀,青砖铺地,十分精致耐看。


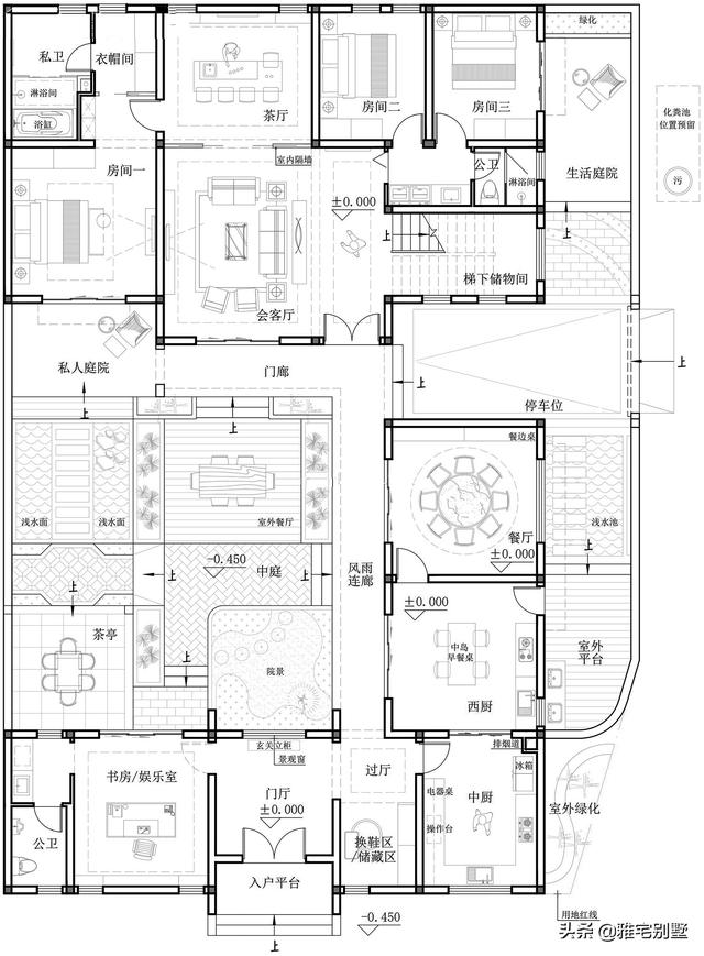
平面图:

一层平面

一层南侧入户,入户设计门厅作为过渡空间。西侧布置一间书房兼娱乐室,带独立卫生间。东侧布置中厨,与西厨相连,餐厅靠东侧,可同时看到两个不同的院落景色。主楼布置在北侧,两层格局。入户是会客厅,结合茶室形成开放式布局,南北通透,通风采光效果显著。一层设计3个卧室,靠东一侧有独立的庭院。房屋整体围绕中间的生活庭院布局,院内有半开放的茶室,室外活动平台,水景与绿植点缀其中。


二层平面

二层主要是居住空间,布置了3个卧室,一个书房,一个家庭活动室。南侧有一个较大的活动露台。

标签:
家庭消防逃生图(如何绘制一张疏散指示图) 二级注册结构工程师报考条件(java架构师需要硕士学历吗?如何 公路工程沥青及沥青混合料试验规程(水泥混泥土桥面水性环氧沥 探索者右侧工具栏怎么调出来(探索者右侧工具栏怎么后退) 建e网室内设计(有哪些高逼格,或者小众的室内装修设计公众号 别墅设计图纸平面图(面宽11米进深13米的二层半别墅,如何设计 吊篮施工安全技术交底(吊篮安全技术交底) 人工挖土方多少钱一方(甲方外委机械挖土,乙方人工清槽,人工 电接点压力表控制水泵接线图(一个接触器一个继电器一个电接点 混凝土规范(混凝土的养护有哪些规范要求)